Property Detail

26960 Red Dr

Menifee CA 92585

$599,990


Property Details

Description

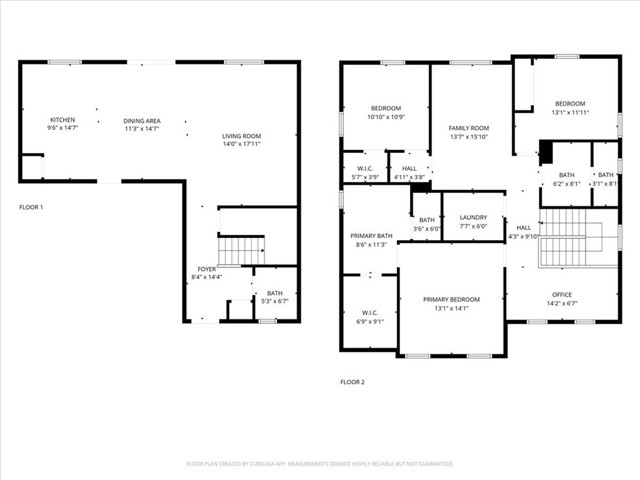
First Time on the Market & Turn-Key Ready! Welcome to 26960 Red Dr, located in the highly desired community of The Village in Menifee. This stunning detached two-story condo lives like a single-family home and is one of the few in the neighborhood that offers both a long driveway and a larger backyard—a rare find! Featuring 3 bedrooms, 2.5 bathrooms, and 2,021 sq. ft. of living space, this home also boasts two versatile lofts—one that can easily be converted into a 4th bedroom, and the other ideal for an office, study, or playroom. Step inside and you’ll be greeted by an inviting open-concept floor plan. A long foyer leads to the expansive living room and a well-appointed kitchen with quartz countertops, stylish backsplash, pendant lighting, and a large center island, perfect for entertaining and everyday living. Upgrades include: • Paid-off solar • Pre-wired for electric vehicle charging • Luxury vinyl plank flooring & plush carpet • Satin paint in some areas of the home • Whole-home water filtration system + alkaline drinking filter in kitchen • Ceiling fan in living room • Added electrical outlet & wiring behind TV wall • Epoxy flooring in 2-car garage Outdoor Features: • Stamped cement, grass, cement borders, drip system & programmable sprinklers • Gas & water lines routed for a future built-in BBQ • Fruit trees: lemon, lime, and nectarine (newly planted) Community Amenities: • Sparkling pool & park • HOA only $193/month Perfectly located near the 215 freeway, shopping, dining, and schools, this home is move-in ready and waiting for its new owners!

Map Location

Listing provided courtesy of Ashley Prieto of KW Temecula. Last updated 2025-09-29 08:23:06.000000. Listing information © 2025 CRMLS.
  • Log in
  • ×