Property Detail

566 Addison

Palo Alto CA 94301

$3,000,000


Property Details

Description

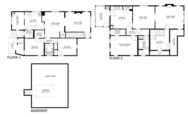
Opportunities abound in this 2,316sf Professorville home! Built in 1900 in one of Palo Alto's most desirable neighborhoods, its plaster walls gracefully transition into the high coved ceilings throughout the ground level. Built-in cabinetry and vintage trim convey the grace of years gone by, while the floorplan is conducive to a large kitchen and large primary suite. The current 3 bedroom, 2 bath, 2 fireplace layout is an invitation to your creative genius to unlock value. Developer highlights include -- The property's FAR is a whopping 2,745sf, far in excess of today's allowance of 2,070 -- Options to add a basement, ADU, and JADU mean over 4,000sf is possible -- Great foundation, great stucco, recently replaced roof, gutters & downsprouts -- Not historic per City of Palo Alto -- Not in Professorville Historic District -- Not in the flood zone. Situated on a quiet residential street, just blocks from downtown shops and restaurants, and mere houses away from the highly regarded Addison Elementary, this location allows easy access to Stanford University, Silicon Valley employers, and award-winning Palo Alto schools.

Map Location

Listing provided courtesy of Young Platinum Group of Golden Gate Sotheby's International Realty. Last updated 2025-12-04 09:18:43.000000. Listing information © 2025 CRMLS.
  • Log in
  • ×