Property Detail

140 Gramercy #1

Los Angeles CA 90004

$860,000


Property Details

Description

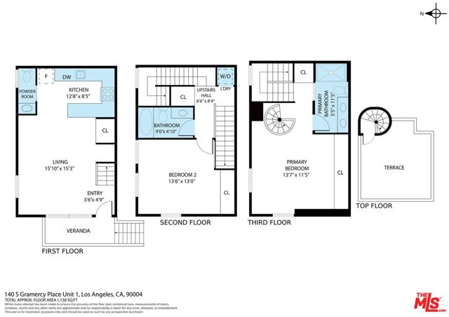
This 1,240 sq.ft. front unit at Gramercy Row in Hancock Park offers privacy, natural light, and thoughtful modern design by AIA-awarded firm Assembledge+. The layout includes an open ground floor with high ceilings, polished concrete floors, smart blinds, smoked glass details, living and dining areas, kitchen with Caesarstone counters and backsplash, LED lighting, updated stainless steel appliances, and a powder room. The second level features bamboo floors, a flexible-use room, full bath, in-unit LG washer/dryer, and storage. The top-floor primary suite includes more bamboo floors, a custom closet, smart blinds, and a skylit bathroom with double sinks, floating vanity, under-cabinet lighting, and a smoked glass divider. A spiral staircase leads to a private rooftop deck with unobstructed 360-degree views from Downtown to the Hollywood Sign. Additional features include a Nest thermostat, Hue smart lighting, Nest smoke detectors, and frosted glass for added privacy. Two tandem parking spaces, guest parking, and elevator access complete the offering. Located near Larchmont Village with easy access to Hollywood and Downtown.

Map Location

Listing provided courtesy of Jeff Yarbrough of Keller Williams Beverly Hills. Last updated 2026-01-02 09:14:35.000000. Listing information © 2025 CRMLS.
  • Log in
  • ×