Property Detail

9240 Santa Margarita

Atascadero CA 93422

$1,799,000


Property Details

Description

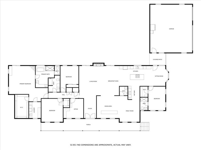
Not only does this 2.5-acre retreat feature state-of-the-art baseball training facilities, including a turf practice field, two outdoor batting cages, and an indoor pitching and hitting room, but the real showstopper is the completely remodeled residence at the heart of it all. The 3,500-square-foot single-level home, offering 4 bedrooms plus an office, showcases a covered front porch overlooking the expansive front yard and practice field. Dual glass and steel front doors open into a formal entry and a spacious great room. Laminate wood floors run throughout, and a modern wood-burning fireplace serves as the centerpiece of the living space. The stunning chef’s kitchen features a large center island with bar seating, Caesarstone quartz countertops, and a separate wet bar with wine and beverage fridges. Accents of brick and vibrant wallpaper add character and elegance. Nearby, a sophisticated entertaining room includes a sitting area, custom bar, and half bath. The privately situated primary suite features a gas fireplace, backyard access, an expansive closet, and a spa-like bath with a standalone tub. The indoor laundry room is conveniently located in the same wing. A secondary primary suite with en-suite bath is located on the opposite side of the home, making it ideal for guests. Step outside to enjoy resort-style amenities including a covered patio with a hot tub, gas firepit, Santa Maria-style BBQ, and a refreshing outdoor shower. Car enthusiasts will appreciate the detached 3-car garage equipped with an EV charger. Additional upgrades include owned solar, dual-zone HVAC, and a tankless water heater. The impressive 1,620 sq ft barn/workshop is currently used as an indoor baseball training facility with a gym area, but it also offers flexibility to become an ADU, horse barn, or RV garage. The fully fenced turf practice field measures approximately 125' x 170' with 165' to center, 150' to left, and 115' to right. Built with gopher wire beneath the surface, it offers a low-maintenance, pro-style setup perfect for training and play. Blending luxury living with unmatched versatility and one-of-a-kind baseball amenities, this property is a rare opportunity to live, play, and entertain on a truly extraordinary scale!

Map Location

Listing provided courtesy of Kate Hendrickson of BHGRE HAVEN PROPERTIES. Last updated 2026-01-20 09:14:58.000000. Listing information © 2025 CRMLS.
  • Log in
  • ×