Property Detail

68 La Palma

Newbury Park CA 91320

$419,950


Property Details

Description

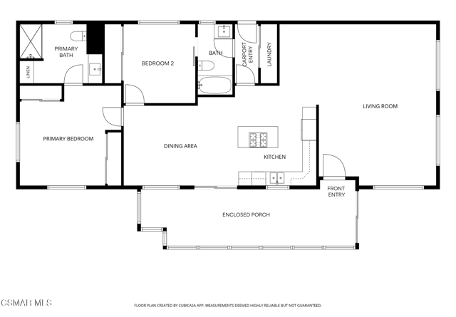
Located in the well-established Vallecito 55+ gated community, 68 La Palma offers serene, low-maintenance living in the heart of Newbury Park--with no property taxes and access to wonderful community amenities.This single-story, 1,681 sq. ft. home has been fully updated and features beautiful newer vinyl flooring throughout, smooth ceilings, upgraded baseboards, designer paint tones, recessed lighting, and dual-pane windows installed in 2022 throughout the home (excluding the enclosed porch). The open, light-filled floor plan creates a seamless flow between the living, kitchen dining, and dining areas, ideal for both everyday living and entertaining.The updated kitchen showcases modern finishes including quartz countertops, a stainless refrigerator, generous cabinetry, a center island with gas cooktop and included stylish kitchen island bar stools! The adjacent dining room is highlighted by a skylight that fills the space with natural light.The fully enclosed porch, complete with matching flooring and a mounted TV, creates a perfect space for entertaining and enjoying the California lifestyle. The home also features a convenient indoor laundry area with a full-size washer and dryer.The primary suite offers a comfortable space with a nicely sized bedroom with dual closets and a beautifully updated en-suite bathroom featuring a large walk-in shower and linen storage. The second bedroom, ideal for guests or a multi-use space, includes a queen-size Murphy bed and is paired with a second updated bathroom featuring a tub/shower combination--perfect for flexibility and convenience.Outdoor living is equally impressive, featuring artificial turf, irrigation, and well-maintained landscaping. A charming vineyard with a variety of grape vines and a mature Meyer lemon tree create a peaceful and unique outdoor retreat. The exterior has been thoughtfully enhanced with updated siding and stacked-stone accents, refreshed front steps and stonework, a retaining wall, widened driveway improvements, and an updated carport with new skirting.Major system upgrades include a new furnace and air conditioning, roof repairs, and numerous interior and exterior improvements--providing peace of mind for years to come.Vallecito Mobile Home Park is a well-maintained, gated community offering a pool, spa, clubhouse, gym, BBQ area, putting green, a community dog run, and a library--designed for active and social living. Residents enjoy access to a gated entry, and a friendly, walkable neighborhood, conveniently located near shopping, dining, parks, and local trails.This move-in-ready and well-cared for home offers comfort, style, and ease of living in one of Newbury Park's most desirable 55+ communities.

Map Location

Listing provided courtesy of Jennifer Chebi of TCG Real Estate and Property Management. Last updated 2026-02-04 09:16:25.000000. Listing information © 2026 CRMLS.
  • Log in
  • ×