Property Detail

7430 Henness Ridge

Yosemite CA 95389

$1,191,000


Property Details

Description

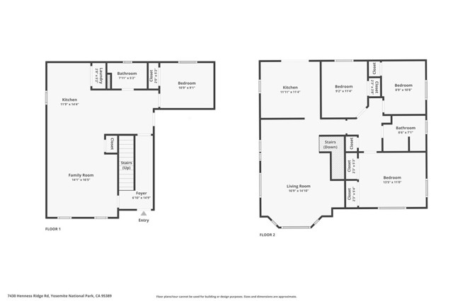
Nestled in the Yosemite West, you will find this great mountain retreat! 4 bedrooms, 2 baths and front and back decks to enjoy the lovely tall trees and fresh mountain air! This 1st floor plan with the living room, 1 large bedroom, full bathroom and room to add a kitchenette with a separate entrance. It would make a wonderful vacation rental for added income or an in-law plan. The main living space offers fantastic views from the living room windows and there is a window seat perfect to read your favorite book, an updated kitchen with breakfast nook, dining area, 3 bedrooms and a bathroom. Lots of improvements including re-plumbed with Pex pipe, exterior painted, new roof (2017), wood laminate flooring, kitchen granite counter tops and tile floor and more. On a large lot, this home offers you the ideal vacation destination and a great place to relax after you spend the day in Yosemite hiking Half Dome, walking to Bridalveil Falls, horse back riding or golf in Wawona, snow skiing at Badger Pass, fishing or nature walks among one of the most beautiful National Park's! Come and tour this home today! It's a rare opportunity to have a destination 2nd home, vacation rental and income or make it your dream home year 'round!

Map Location

Listing provided courtesy of Rene Christenson of Century 21 Ditton Realty. Last updated 2026-04-01 08:17:09.000000. Listing information © 2026 CRMLS.
  • Log in
  • ×