Property Detail

2760 Park Blvd

Oakland CA 94606

$899,000


Property Details

Description

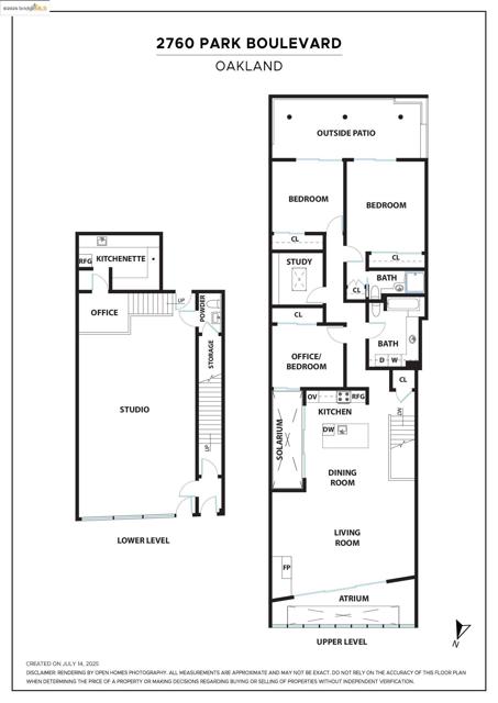
A truly distinct Mid-Century structure – stunning, multi-functional and located in Oakland's Cleveland Heights neighborhood. Awash with natural light from every room. Home consists of a level in-studio space and a separate living area. On the studio level with 1/2 bath (roughly 800 SQF) there is a large bank of new windows that infuse sunlight into a grand open area. This is an ideal spot for true creativity to flourish. Studio level connects to the main living area via wood stairs. On this upper floor, 3 bedrooms and 2 baths exist with gorgeous parquet wood flooring. The open floor plan is punctuated by a glass atrium, a fireplace, and a separate patio connected to the kitchen. Bask in the efficiency of late 50s design, where everything in the kitchen is where it should be. Vertical grain wood panel doors on the cabinets mixes with classic square tile. The dining area is ample enough to host both large gatherings. All 3 bedrooms are well-sized and have ample closet space. The large bath has a shower over tub and quintessential tile colors. The primary bedroom has an ensuite bathroom that is to die for. The primary and the third bedroom both have access to the outside back patio. This little private oasis gets lovely light and is a wonderful place for dining. A must see home!

Map Location

Listing provided courtesy of Scott Ward of Red Oak Realty. Last updated 2025-09-25 08:10:48.000000. Listing information © 2025 CRMLS.
  • Log in
  • ×