Property Detail

6301 Bixby Hill

Long Beach CA 90815

$2,399,000


Property Details

Description

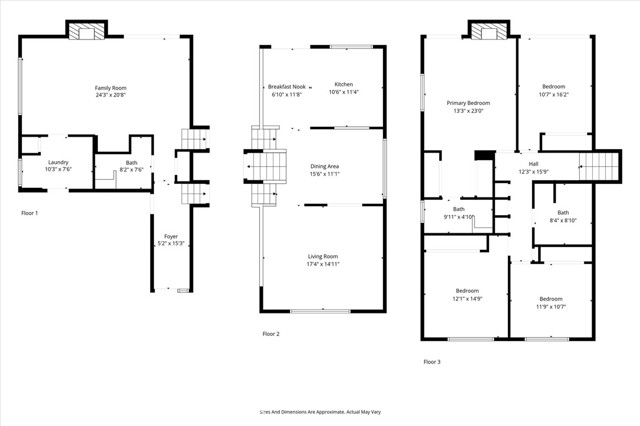
Gorgeous Views! Beautiful 4-bedroom,3-bath,2515 sq.ft. home located high on the hill in the exclusive guard gated community of Bixby Hill. Set on a 10,428 sq ft. lot with amazing views, this residence offers new paint throughout, granite counters, a Dacor 6-burner stove with grill, Miele dishwasher, Listone Giordano hardwood floors in family room, Milgard windows, tile roofing, a finished 2 car garage, and an updated electrical panel. Designed with comfort in mind the home features huge skylights in kitchen and upper bath, 4 sun tunnels, and ceiling fans in every room. Additional highlights include 2 wood burning fireplaces, an old school laundry chute, and thoughtfully updated kitchen and baths. The expansive backyard is perfect for entertaining with Trek upper and lower decks, a huge saltwater spa, garden fountain, garden seating areas, and mature fruit trees (pomegranate, persimmon, blood orange, avocado) Conveniently close to CSULB, beaches, shopping, bike paths, golf courses, and major freeways.

Map Location

Listing provided courtesy of Evangelina Wolfley of The Agency. Last updated 2025-10-08 08:15:52.000000. Listing information © 2025 CRMLS.
  • Log in
  • ×