Property Detail

248 Mill Street

Orland CA 95963

$305,000


Property Details

Description

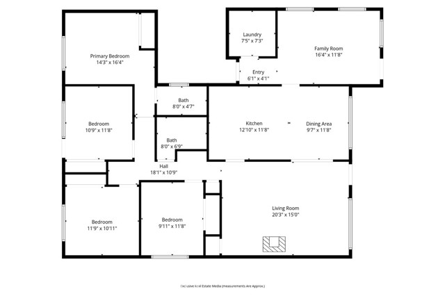
Investor Opportunity in the Heart of Orland! This 4 bed, 2 bath property at 248 E. Mill Street is priced to move and primed for your next project. With a functional floor plan, woodstove for added charm, and a spacious kitchen/dining area, this home offers solid bones and tons of upside. It needs cosmetic updates — paint, flooring, and modern touches — but here’s where it gets interesting: a fully permitted, newer shop in the back. Finished and roughly the size of a 3-car garage, it's ideal for a workshop, ADU conversion (check with the city), storage, or added rental income potential. Located near downtown Orland with easy access to amenities, this property is a smart buy for flippers, BRRRR investors, or anyone looking to build sweat equity. Priced below market for a reason — bring your vision and unlock the value.

Map Location

Listing provided courtesy of Nino Pinocchio of Keller Williams Realty Chico Area. Last updated 2025-10-06 08:16:24.000000. Listing information © 2025 CRMLS.
  • Log in
  • ×