Property Detail

18830 Newman

Red Bluff CA 96080

$530,000


Property Details

Description

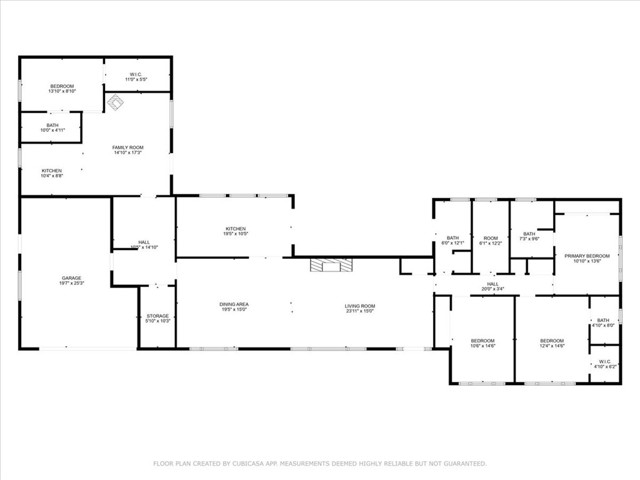
Spacious 3 bedroom, 3 bath home on nearly 16 acres with so much to offer. Inside, you’ll find a large living room and an office with built-in storage. Two of the bedrooms feature their own private ensuites, providing comfort and convenience for family or guests. An attached ADU offers even more flexibility, with its own full kitchen, bathroom, walk-in closet, and separate bedroom for true independence. Outdoors, enjoy a covered back patio perfect for relaxing or entertaining. The property also includes a 1-car attached garage, 2-car detached garage, and a detached shop with kitchenette and full bath. With owned solar and a backup generator, this home is designed for energy efficiency and self-sufficiency. A seasonal pond and wide-open acreage complete this unique country retreat.

Map Location

Listing provided courtesy of Barbara Dancel of HIVE Real Estate Group, Inc. Last updated 2025-10-08 08:19:31.000000. Listing information © 2025 CRMLS.
  • Log in
  • ×