Property Detail

2433 Stern Deck

Bradley CA 93426

$475,000


Property Details

Description

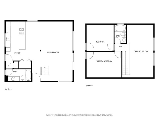
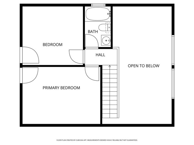
Tucked inside the gated community of Oak Shores, this inviting two-story home blends lake-area charm with everyday convenience. Off-street parking and a 29' deep garage, complete with washer, dryer, and on-demand water heater, set the tone for a property designed with practicality in mind. A wraparound deck welcomes you with peaceful views of Lake Nacimiento, offering the perfect spot for morning coffee or evening sunsets. Inside, the main level features an open layout wrapped in warm knotty pine and updated with new vinyl flooring. The kitchen is thoughtfully arranged with a long breakfast bar, dishwasher, propane range, and a door leading directly to the rear deck for easy indoor-outdoor entertaining. A generous pantry, utility closet, and a full bathroom add valuable functionality on the main floor. Upstairs, two bedrooms and a full bathroom create a relaxing retreat. Step out onto the private rear balcony to soak in sweeping mountain views, a serene backdrop to start or end your day. Owning in Oak Shores means enjoying resort-style amenities year-round: pickleball courts, hiking trails, a mini golf course, playground, two boat launch ramps, a marina with over 60 courtesy slips, a heated swimming pool, clubhouse, and even a campground. This property offers the best of lake living and community convenience in one beautiful package.

Map Location

Listing provided courtesy of Jasmine Duncan of Oak Shores Realty. Last updated 2025-12-03 09:15:04.000000. Listing information © 2025 CRMLS.
  • Log in
  • ×