Property Detail

452 Liberty

Soledad CA 93960

$689,999


Property Details

Description

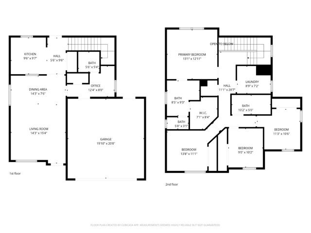
Take advantage of this fantastic opportunity to enjoy a move-in ready, 1,736 sq ft home built in 2023. This two-story home features four bedrooms, including a spacious primary suite, 2.5 baths, and an upstairs laundry room. The kitchen boasts granite countertops, stainless steel appliances, and a pantry. Owned solar panels contribute to energy-efficient living. The outdoor space, complete with a patio and awning, is perfect for entertaining or relaxation. This charming lane of homes, built by Nino Homes, is surrounded by mountain and valley views. Liberty Court offers an ideal blend of small-town neighborhood living with nearby shopping, schools, movie theater, dining, recreational activities, and easy access to Highway 101. Explore the local wineries or take a scenic drive to Pinnacles National Monument. Come see this exceptional home for yourself and experience all that this vibrant community has to offer!

Map Location

Listing provided courtesy of Todd Brown of Compass. Last updated 2025-12-04 09:18:43.000000. Listing information © 2025 CRMLS.
  • Log in
  • ×