Property Detail

17244 Ta-Ki-Pi

Apple Valley CA 92307

$707,990


Property Details

Description

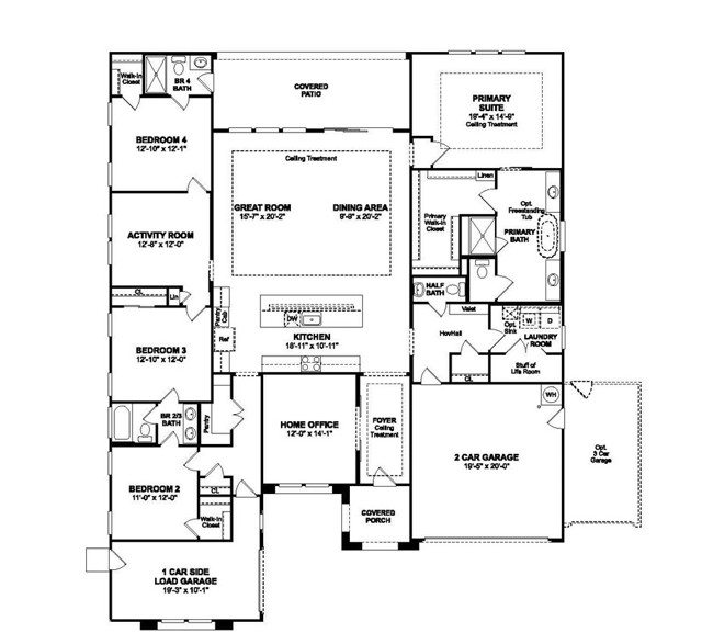
Welcome to Vista del Sol, a community where timeless design, modern comfort, and everyday convenience come together effortlessly. Just minutes from shopping, dining, and scenic outdoor spaces, this neighborhood offers a lifestyle that feels both connected and serene. The impressive Austin plan is a spacious single-story home featuring 4 bedrooms, 3.5 baths, and a dedicated home office, perfect for work, creativity, or quiet focus. Loft-inspired finishes add a touch of contemporary character throughout. The gourmet kitchen stands out with crisp White cabinetry, dramatic Soapstone quartz countertops, a custom tile backsplash, premium GE Profile appliances, and an oversized island that anchors the open living space. Seamless flow from the great room to the covered patio makes hosting and everyday living a breeze. A thoughtful split-bedroom layout gives the primary suite its own private wing, complete with dual vanities, a walk-in shower, freestanding soaking tub, and a spacious walk-in closet. An activity room connects two secondary bedrooms, while another bedroom offers its own ensuite bath, perfect for guests or multigenerational living. With elevated finishes and a layout designed for comfort and style, the Austin plan brings exceptional living to Vista del Sol.*Prices subject to change.

Map Location

Listing provided courtesy of Michelle Nguyen of K. Hovnanian Companies of CA. Last updated 2025-12-04 09:18:43.000000. Listing information © 2025 CRMLS.
  • Log in
  • ×