Property Detail

2422 Primrose Avenue

Vista CA 92083

$1,400,000


Property Details

Description

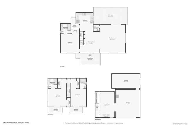
Set on a scenic hillside with panoramic canyon, mountain, and peek-a-boo ocean views, this beautifully remodeled Vista home offers exceptional versatility and value. The main residence spans over 2,300 square feet with three spacious en-suite bedrooms, ideal for multigenerational living or rental flexibility. A detached 1 bed / 1 bath ADU with its own garage adds income potential or guest space. The interior showcases modern upgrades throughout—wood and tile flooring, a fully remodeled kitchen with shaker cabinets, Quartz counters, and stainless appliances. Recent major improvements include a new roof, HVAC, dual-pane windows, and garage doors—all installed in 2024. The backyard is expansive, private, and fully fenced with a large patio ready for entertaining or relaxing. With no HOA or Mello-Roos, and a rare two-on-one layout, this is an incredible opportunity for homeowners or investors alike looking to maximize lifestyle and value in North County.

Map Location

Listing provided courtesy of Bobby Martins of eXp Realty of California, Inc. Last updated 2025-12-04 09:18:43.000000. Listing information © 2025 CRMLS.
  • Log in
  • ×