Property Detail

3530 Damien #83

La Verne CA 91750

$249,000


Property Details

Description

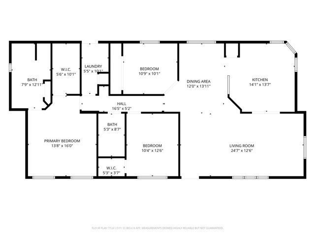
Welcome to 3530 Damien Ave, La Verne, CA 91750, a beautifully upgraded 55+ residence that perfectly blends comfort, style, and convenience. Step inside this recently built home (2015) to discover a spacious 3-bedroom, 2-bathroom layout, complete with an interior laundry room for added ease. The home has been thoughtfully designed with energy-efficient dual-pane windows and a water filtration system. You will love the stunning, remodeled kitchen which features beautiful countertops and premium self-closing drawers, ideal for cooking and entertaining. A gorgeous skylight provides abundant natural light, creating a bright and airy atmosphere throughout the living areas. Each room offers generous space, including a master suite that serves as your own private retreat, featuring a truly huge walk-in closet, and Dual Sinks. This incredible turn-key home also includes ALL appliances and the living room couch, making your transition seamless. Located in a desirable 55+ senior community, this home offers easy access to major transportation and local amenities. You are just minutes from the 210 (Foothill) Freeway, and have quick access to the 10 and 57 Freeways, making your commute or day trips a breeze. Enjoy the convenience of shopping at your local Vons, Target, Costco, and other stores just down the street.

Map Location

Listing provided courtesy of Luis Cortes of Coldwell Banker Envision. Last updated 2025-12-06 09:16:29.000000. Listing information © 2025 CRMLS.
  • Log in
  • ×