Property Detail

427 Calle Madrigal

Cathedral City CA 92234

$314,900


Property Details

Description

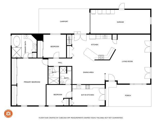
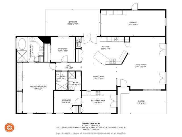
Welcome to 427 Calle Madrigal, a stunning mid-century inspired home located in the highly desirable Date Palm Country Club of Cathedral City. Offered turn-Key furnished, this beautifully updated 3-bedroom, 3-bathroom residence spans approximately 2,200 square feet and offers a rare combination of style, function, and breathtaking views of the golf course and tranquil pond. The main house features two spacious bedrooms and two fully renovated bathrooms, while the attached private casita includes one bedroom, one bathroom, its own updated kitchen, private entrance, and a separate mini-split HVAC system--perfect for guests, extended stays, or as a private rental. The casita presents a fantastic opportunity to generate additional income, helping to offset the land lease cost and increasing overall affordability.Both the main residence and casita enjoy expansive fairway and water views, and each boasts its own private covered patio for relaxing or entertaining. Inside, the home is flooded with natural light thanks to all-new windows and doors, enhancing the clean lines and modern feel throughout. The main house kitchen has been refreshed with quartz countertops and updated appliances while keeping the original cabinetry, maintaining its character and charm. The casita kitchen also features quartz counters, complemented by classic white appliances for a bright, clean look. All bathrooms throughout the property have been tastefully renovated, and the entire home is offered fully furnished with stylish, comfortable pieces, making it move-in ready. A detached garage provides additional convenience and storage.Whether you're looking for a full-time residence, seasonal escape, or an income-producing opportunity, 427 Calle Madrigal offers it all with timeless mid-century flair, modern updates, and one of the best views in the community.

Map Location

Listing provided courtesy of Justin Berry of Caritas Realty. Last updated 2025-12-06 09:16:29.000000. Listing information © 2025 CRMLS.
  • Log in
  • ×