Property Detail

211 Via Dijon

Newport Beach CA 92663

$3,990,000


Property Details

Description

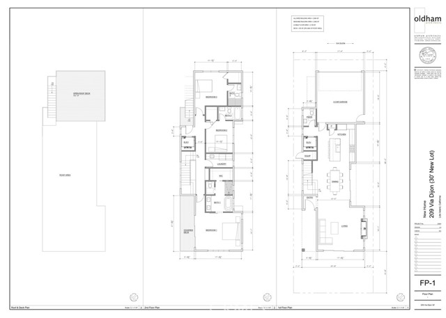
Build Your Dream Home on Lido Isle – Shovel-Ready Opportunity An exceptional opportunity awaits on Lido Isle to create your custom coastal residence without the delays of starting from scratch. The seller has completed all of the heavy lifting—architecture, city, HOA, and engineering approvals—so that the next owner can hit the ground running once the County records the new parcel number. This “shovel-ready” lot includes fully designed plans for a sophisticated 3-bedroom, 3.5-bath home featuring an elevator and rooftop deck, thoughtfully conceived to capture the relaxed yet refined essence of island living. Set within Newport Beach’s premier island enclave, this property offers convenient proximity to the Lido Marina Village, yacht club, tennis and pickleball courts, and the island’s private beaches. Enjoy the rare advantage of beginning your build immediately in one of coastal Orange County’s most desirable neighborhoods—an ideal opportunity to bring your vision to life on Lido Isle. Note: There is not a structure currently on the parcel. Offering is for a lot with plans to build, which will be approved once the APN is recorded. Prior lot was split into two parcels.

Map Location

Listing provided courtesy of Jon Flagg of Pacific Sotheby's Int'l Realty. Last updated 2025-12-09 09:14:33.000000. Listing information © 2025 CRMLS.
  • Log in
  • ×