Property Detail

19637 Juniper Loop

Morgan Hill CA 95037

$1,049,000


Property Details

Description

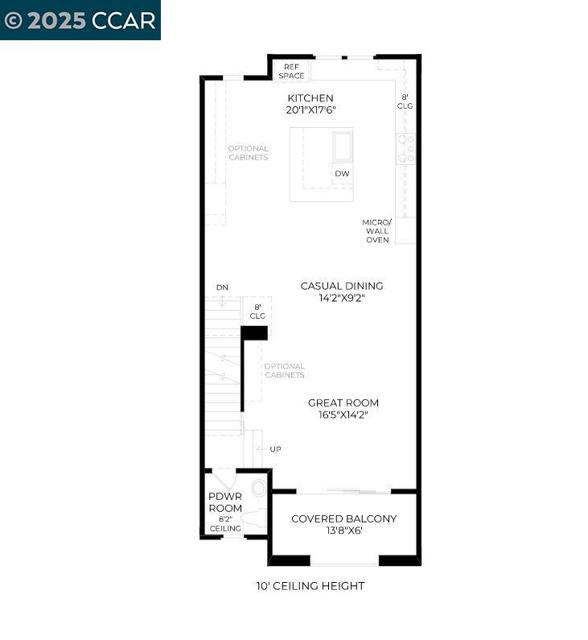
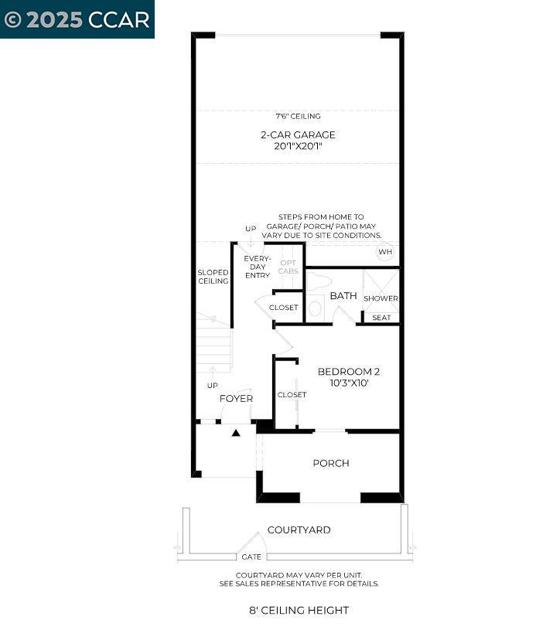
Discover luxury living in a sought-after location at Manzanita Park. The first floor offers a secluded secondary bedroom with a desirable private bath. The second floor opens with a stylish great room featuring access to a casual dining area and a lovely covered patio. The smartly designed kitchen is highlighted by a large island with wraparound seating, stainless steel appliances, modern cabinets, ample counter and cabinet space, and a pantry. At one end of the third floor lies the primary bedroom suite, complete with a walk-in closet and a serene primary bath with a dual-sink vanity, a tranquil shower with seat, linen storage, and a private water closet. Two charming secondary bedrooms share a full hall bath. Additional highlights include an everyday entry with drop zone, a second-floor powder room, and convenient bedroom-level laundry. Picturesque rolling hills of Morgan Hill. Manzanita Park Community amenities include pickleball courts, tot lot, private dog park, centralized resident congregation area and serene gardens. Located close to 101, Caltrain, employment and education hubs of Silicon Valley. Enjoy a vibrant nightlife and elevated dining experience in Downtown Morgan Hill. (Photos not of actual home, for marketing, features and upgrades are different)

Map Location

Listing provided courtesy of Bernadina Romero of Toll Brothers Real Estate,Inc. Last updated 2025-12-10 09:17:27.000000. Listing information © 2025 CRMLS.
  • Log in
  • ×