Property Detail

15 Braemoor

Santa Cruz CA 95060

$625,000


Property Details

Description

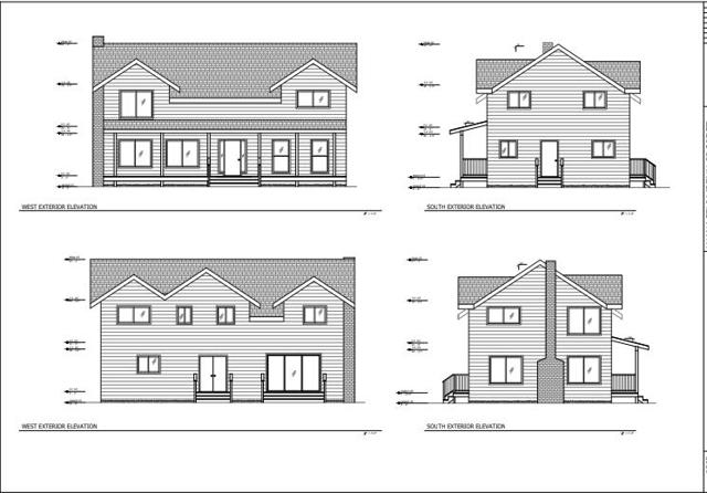
Custom tiny home with active permits to rebuild on a flat 1 acre parcel. When you close your eyes and imagine what the perfect tiny home setup would be on a Santa Cruz mountain property - this is exactly that concept, brought to reality. This 280 sqft custom built tiny house on wheels includes sleeping loft, full kitchen, breakfast nook, full bathroom, mini split heating/ cooling, dual pane windows, and full laundry all wrapped in finishes common to newly built custom homes. The flat, rectangular 1.08 acres includes tree lined driveway, functioning 1500 gallon septic, private well water with pressurizer pump, and permanent 200 amp panel from PGE installed on site. Also included is a garden shed, 40 ft shipping container wired (but not electrified) to be a shop, taller than average carport (large enough for a small/ medium RV, boat, or trailer). Plans have been submitted for permits and are available for review for a 3 bed 2 bath home at about 2,300 sqft with a detached 2 car garage with rumpus room above. Permits for proposed plan to be active on or before close of escrow. The lot offers some mixed woods (including apple, pear, and cherry trees), full sun, and every square foot of it is useable which is rare in the mountains with easy access to Santa Cruz, Felton, and Davenport.

Map Location

Listing provided courtesy of Peter Eubank of Room Real Estate. Last updated 2026-02-24 09:22:31.000000. Listing information © 2026 CRMLS.
  • Log in
  • ×