Property Detail

142 Vineyard

Aptos CA 95003

$1,199,000


Property Details

Description

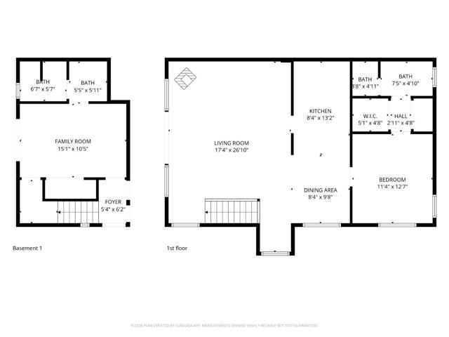
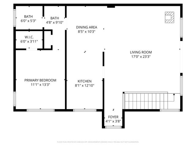
Smart Investment! Charming duplex tucked away on a peaceful cul-de-sac delivers exceptional rental income and long-term value. Each thoughtfully designed unit offers two bedrooms and two bathrooms, with vaulted ceilings that create an airy, spacious feel throughout. The functional layout features one bedroom upstairs and one downstairs, both with private bathrooms ideal for privacy, flexibility, and maximum tenant appeal. Step outside to stunning back decks overlooking a serene canyon filled with mature trees and protected open space a tranquil backdrop rarely found in income properties. Each unit includes a two-car garage, adding convenience and strong rental desirability. Perfectly located with easy access to Seascape Resort, fine dining, and close beach access, this property combines peaceful surroundings with coastal lifestyle appeal. An exceptional income property or a beautiful opportunity to reside in one unit while generating rental income from the other. Professionally managed with established tenants and a proven rental history, this duplex is a rare find in todays market. Schedule your private tour today.

Map Location

Listing provided courtesy of Lisa Bailey Aratin of Bailey Properties. Last updated 2026-02-28 09:19:56.000000. Listing information © 2026 CRMLS.
  • Log in
  • ×