Property Detail

3300 Harrison St

Oakland CA 94611

$848,000


Property Details

Description

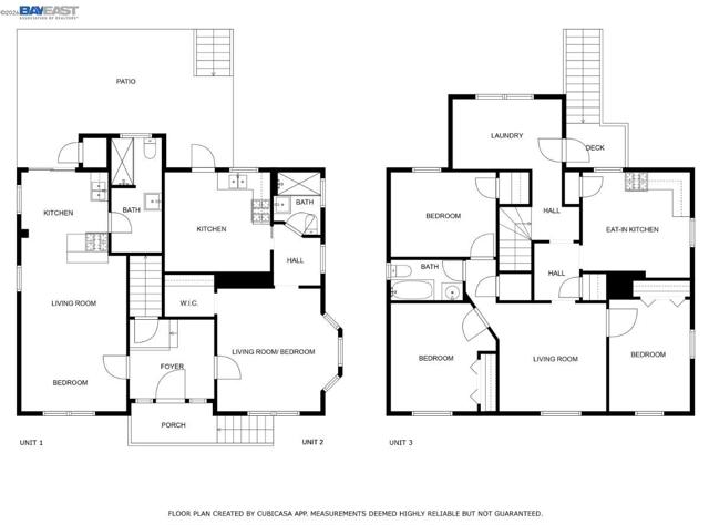
OPEN HOUSE SATURDAY & SUNDAY! Exceptional Investment Opportunity in a Prime Oakland Location, Strong rental potential with immediate income opportunity. Excellent opportunity to live in one unit while generating rental income to help offset your mortgage. This property offers the perfect blend of urban convenience and neighborhood charm. Enjoy an unbeatable location blocks from Whole Foods and Lake Merritt. Surrounded by popular restaurants, cafés, boutique shopping, and entertainment, this vibrant neighborhood delivers a true Oakland lifestyle. Commuters will appreciate easy access to BART, AC Transit, and major freeways connecting to San Francisco and the greater Bay Area. Unit Breakdown: • Unit 1: Charming studio featuring an updated kitchen with granite countertops, a dedicated study nook, and direct access to the backyard. • Unit 2: Newly remodeled studio with a modern kitchen and bath, granite countertops, stylish tile, updated fixtures, washer/dryer hookups, and backyard access. • Unit 3: Spacious upper-level 3-bedroom, 1-bath unit with an eat-in kitchen, in-unit laundry, and access to outdoor space. More Property Highlights: • Off-street parking • Fully fenced front and backyard offering privacy and usable outdoor space

Map Location

Listing provided courtesy of Rose Krinks of BHHS Drysdale Properties. Last updated 2026-03-31 08:20:35.000000. Listing information © 2026 CRMLS.
  • Log in
  • ×