Property Detail

4380 Temecula St #4

San Diego CA 92107

$515,000


Property Details

Description

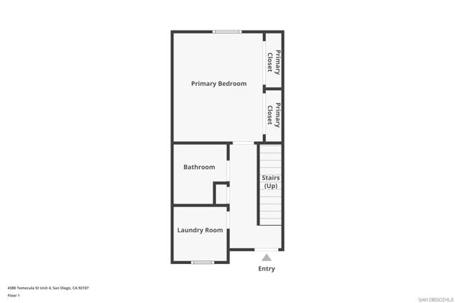
Completely updated Point Loma townhouse is situated in an ideal location; only 5 minutes from Ocean Beach and everything else San Diego has to offer. This two-story townhome offers an amazing layout for entertaining with a living room and kitchen upstairs, and with bedroom downstairs. Recent upgrades include new luxury vinyl flooring, paint, and appliances. Mere minutes from all beaches, with 5 minutes by car gives you access to the 5 & 8 freeways. Entering the home, you will be met with a dedicated laundry room, hallway linen closet, primary bedroom, and completely updated bathroom. Back upstairs, open concept living and dining room with a balcony that allows slight views of Seaworld and fireworks. This unit also comes with TWO tandem parking spaces, central heating, and air. Amazing opportunity for a first time buyer, investor or someone looking to downsize.

Map Location

Listing provided courtesy of Trent Schulte of eXp Realty of California, Inc.. Last updated 2026-04-01 08:17:09.000000. Listing information © 2026 CRMLS.
  • Log in
  • ×