Property Detail

1111 Morse

Sunnyvale CA 94089

$389,000


Property Details

Description

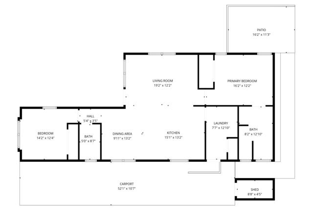
Welcome to this beautifully updated, move-in ready manufactured home nestled in a quiet and welcoming Willow Ranch 55+ senior community. This well-maintained 2-bedroom, 2-bath home features a spacious living room that fill the space with natural light, along with newer appliances and thoughtful upgrades throughout. Situated on a desirable large lot, the property includes an expansive driveway that accommodates 4+ vehicles- one of the few homes in the community offering such generous parking, along with a private gated backyard which is perfect for relaxing with family and pets. The open-concept eat-in kitchen is designed for both function and style, complete with a beautiful center island. The bright and airy floor plan offers a separate living area and a cozy dining space, enhanced by modern upgrades including dual-pane windows, laminate flooring, recessed lighting, and updated bathrooms. The kitchen comes fully equipped with all appliances, making this home truly turnkey. Step outside to your private backyard oasis and enjoy the convenience of nearby guest parking. Shopping centers and a variety of dining options are just a short drive away.

Map Location

Listing provided courtesy of Sharon Chen of Compass. Last updated 2026-04-11 08:16:44.000000. Listing information © 2026 CRMLS.
  • Log in
  • ×