Property Detail

120 Sumac Lane

Fountain Valley CA 92708

$170,000


Property Details

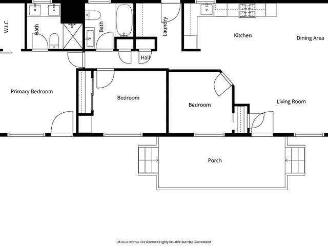
Description

Live in one of the most sought-after school districts in Fountain Valley—without the million-dollar price tag. Welcome to 120 Sumac, a beautifully remodeled 3-bedroom, 2-bath home nestled in a well-maintained, family-friendly community in the heart of Orange County. This move-in-ready home showcases a fully renovated interior featuring a stylish modern kitchen with updated cabinetry, sleek stainless-steel appliances, upgraded bathrooms, new flooring, fresh interior paint, and energy-efficient windows. The spacious and versatile floor plan offers three full bedrooms—ideal for growing families, a home office, or multigenerational living. Step outside and enjoy a welcoming community atmosphere with resort-style amenities, including a sparkling pool, clubhouse, and professionally maintained grounds designed for comfort and convenience. With an estimated monthly cost significantly lower than purchasing a traditional single-family home in the same highly desirable area, this property offers one of the most affordable opportunities to own in Fountain Valley. Why rent when you can own in this prime location?

Map Location

Listing provided courtesy of Angela Black of Angela Black, Broker. Last updated 2026-04-14 08:16:39.000000. Listing information © 2026 CRMLS.
  • Log in
  • ×