Property Detail

617 Irena Unit B

Redondo Beach CA 90277

$2,449,000


Property Details

Description

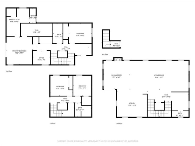
Experience elevated coastal living in this freestanding, newly constructed contemporary townhome in South Redondo Beach. Designed to capture ocean views from the main living level and rooftop deck, this light-filled home offers seamless indoor-outdoor flow with multiple balconies. The open-concept living area features a chef’s kitchen with Thermador appliances, pot filler, farmhouse sink, built-in wine storage, and a large island. It opens to the living and dining areas, where ocean views and modern design create a relaxed coastal feel. A flexible layout includes two bonus spaces ideal for offices, play areas, gym, or creative use—one near the primary suite and one on the main level. High ceilings, oversized 8-foot solid wood doors, and designer finishes highlight the home’s quality. Additional features include a private three-stop elevator, solar panels, pre-wiring for WiFi security with cameras and surround sound, and a 220V EV-ready garage. Ideally located near top-rated schools, beaches, parks, and dining, this home offers the best of South Bay living.

Map Location

Listing provided courtesy of Gary Elminoufi of Beach City Brokers. Last updated 2026-04-21 08:19:11.000000. Listing information © 2026 CRMLS.
  • Log in
  • ×