Property Detail

1963 Cabernet

Salinas CA 93906

$885,000


Property Details

Description

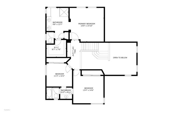
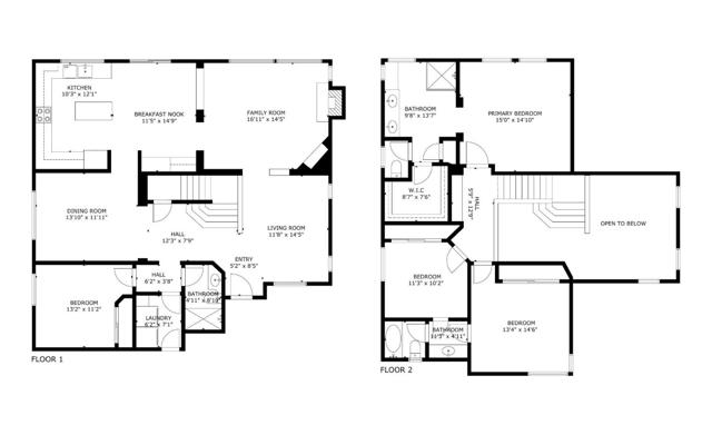
Welcome to 1963 Cabernet Way, where thoughtful design and everyday comfort come together in a home that feels both inviting and refined. From the moment you step inside, high ceilings and an abundance of natural light create an open, airy atmosphere that immediately sets the tone. The layout is designed for both connection and flexibility. A formal dining room offers a dedicated space for gatherings, while the eat-in kitchen, finished with granite counters, becomes the natural hub for casual meals and conversation. Hardwood floors add warmth and continuity throughout the main living areas. A separate den with a fireplace provides a cozy retreat, ideal for unwinding at the end of the day or creating a comfortable media or reading space. The addition of a dedicated office allows for focused work, creative projects, or quiet study, an increasingly valuable feature in todays homes. With three bedrooms and three baths, the home offers a practical balance of private and shared spaces, accommodating a variety of living arrangements with ease. Outside, the low-maintenance, manicured yard is designed for enjoyment, perfect for relaxing afternoons or easy outdoor entertaining. Set within a lovely neighborhood, the surroundings complement the homes sense of calm and livability.

Map Location

Listing provided courtesy of Amy Jeske of Coldwell Banker Realty. Last updated 2026-04-21 08:19:11.000000. Listing information © 2026 CRMLS.
  • Log in
  • ×