Property Detail

2160 Rosswood

San Jose CA 95124

$2,554,000


Property Details

Description

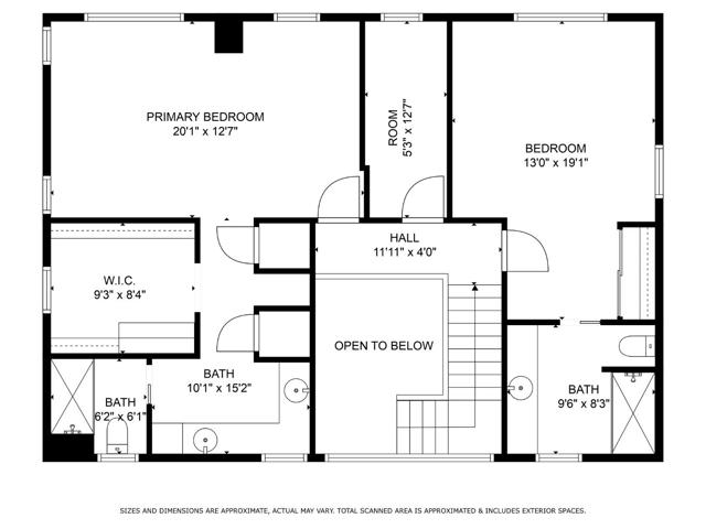
Welcome to this thoughtfully designed five-bedroom, three-and-a-half bath home, perfectly situated on one of Cambrain Park's most coveted streets and neighborhoods within the award-winning Union School District. From the moment you step inside, the floor plan feels both comfortable and intuitive. The main-level ensuite bedroom offers an ideal retreat for guests or extended family, while a private office with custom built-ins provides a quiet space for work or study. The primary bedroom is on the second level with a large walk-in closet and an updated bathroom with dual sinks and a walk-in shower. This home enjoys a prime location close to shopping, top schools, and major commuter routes, making everyday living wonderfully convenient. We're putting the finishing touches on a few improvements before going live on the MLS.

Map Location

Listing provided courtesy of Robin Sedgwick of Coldwell Banker Realty. Last updated 2026-04-21 08:19:11.000000. Listing information © 2026 CRMLS.
  • Log in
  • ×